- €1,875,000
Overzicht
- Villa
- 4
- 4
- 292 m2
- 1500 m2
- 2025
Beschrijving
Luxe nieuwbouwvilla te koop op de zonovergoten zuidflank van de Montgó,
Beleef luxe en comfort in deze exclusieve nieuwbouwvilla, gelegen op een royaal perceel in de prestigieuze urbanisatie El Garroferal. Deze prachtige villa bevindt zich op slechts 3 km van het charmante centrum van Jávea. Vanuit de villa geniet u aan de zuidkant van een panoramisch uitzicht over de vallei en de omliggende bergen. Aan de noordzijde wordt het uitzicht gedomineerd door de indrukwekkende rotswanden van de Montgó.
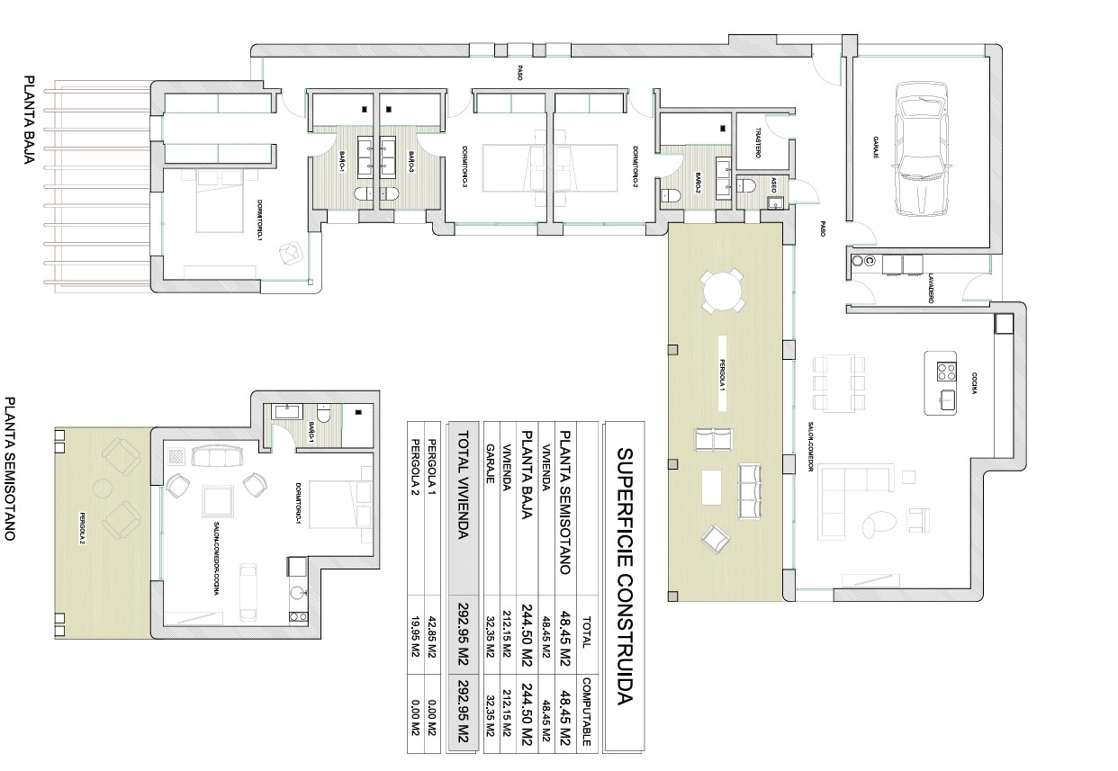
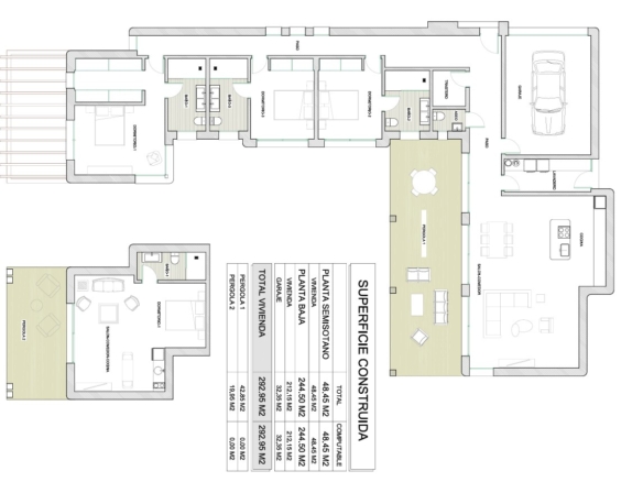
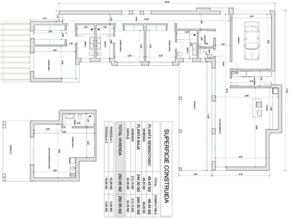
Deze villa is ontworpen met oog voor detail en biedt alles wat u zich kunt wensen. De begane grond beschikt over een ruime en lichte woon-eetkamer die naadloos overgaat in een moderne open keuken. Vanuit de leefruimtes leiden grote schuiframen naar een ruim terras met een stijlvolle pergola, ideaal om te genieten van het zonnige klimaat. Het terras ligt direct aan het privézwembad en is perfect georiënteerd op het zuiden, zodat u de hele dag van de zon kunt genieten. Op deze verdieping bevinden zich tevens drie ruime tweepersoonsslaapkamers, elk met een en suite badkamer, en een gastentoilet. Voor extra gemak is er ook een garage die direct verbonden is met de woning.
In de semi-kelderverdieping bevindt zich een zelfstandig appartement dat extra flexibiliteit biedt. Dit appartement omvat een sfeervolle woonkamer met een open keuken, een comfortabele slaapkamer en een moderne badkamer. Het privéterras met pergola biedt een aangename plek om te ontspannen, afgezonderd van de hoofdwoning.
De villa is momenteel in aanbouw en zal eind 2026 worden opgeleverd. (Onder voorbehoud).
Deze villa biedt de perfecte balans tussen modern design en comfort. Neem vandaag nog contact met ons op voor meer informatie en ontdek de unieke mogelijkheden van deze droomwoning.
Adres
Openen op Google Maps-
Plaats: Javea
-
Provincie: Alicante
-
Wijk: El Garroferal
-
Land: Spanje
Details
Bijgewerkt op januari 18, 2026 op 10:51 am-
Referentie C3XY4490JAV
-
Prijs €1,875,000
-
Bebouwde oppervlakte m2 292 m2
-
Grondstuk grootte m2 1500 m2
-
Slaapkamers 4
-
Badkamers 4
-
Bouwjaar 2025
-
Eigendom type Villa
-
Eigendomstatus Nieuwbouw
-
Afstand tot zee (m) 4000
-
Oriëntatie Zuid
-
Verwarming Vloerverwarming warmtepomp
-
Warmwatervoorziening Warmtepomp
-
Verdiepingen 2
-
Zwembad Privé
-
Type terrein Licht hellend
-
Uitzicht Berg
-
Woningtype Villa
-
Constructie Nieuwbouw
-
Terrein Licht hellend
