- €2,995,000
Overzicht
- Villa
- 4
- 4
- 458 m2
- 1500 m2
Beschrijving
Deze nieuwbouw villa zal gebouwd worden op een ruim perceel van 1500 m2 in de luxueuze urbanisatie Raco de Galeno op 2 km van de prachtige kust van Benissa.
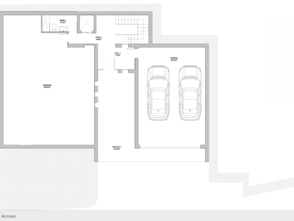
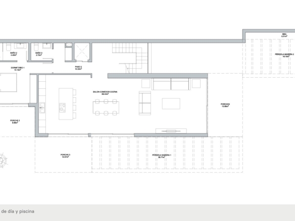
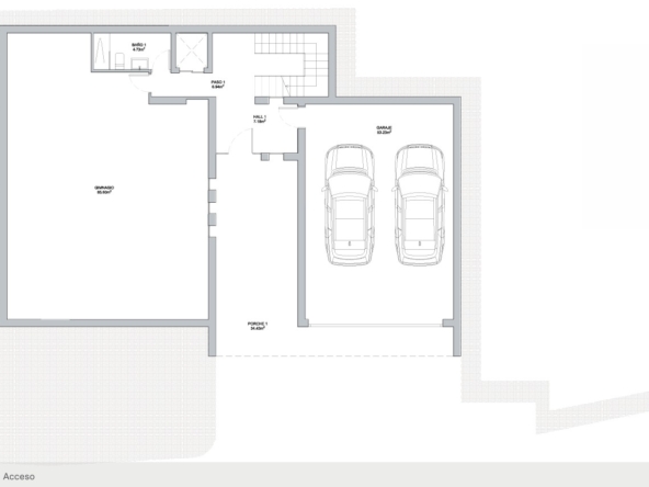
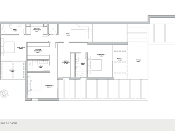
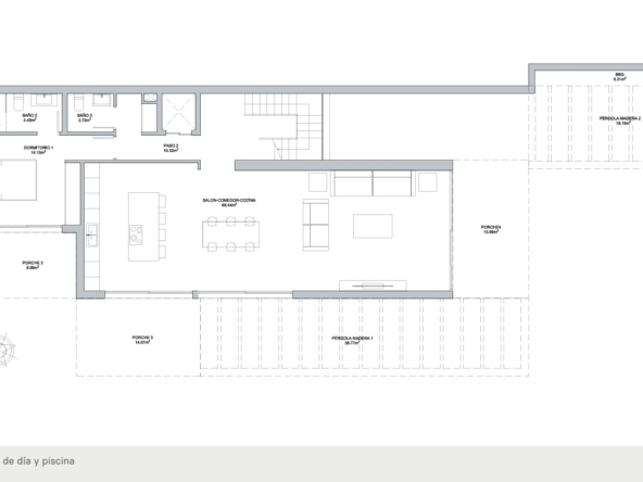
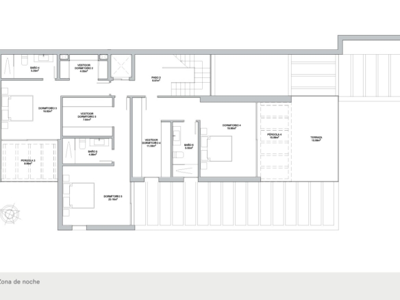
De villa heeft een totale bebouwde oppervlakte van 459 m2 verdeeld over twee verdiepen + een kelderverdieping met een dubbele garage. De benedenverdieping bestaat uit een ruime woon-eetkamer met een moderne, open keuken, een slaapkamer met een en suite badkamer en een privéterras en een gastentoilet. Op de bovenverdieping bevinden zich nog drie luxueuze slaapkamers, elk met een en suite badkamer en een dressing. Eén slaapkamer heeft via schuiframen toegang tot een privéterrás en de andere twee slaapkamers delen een zeer ruim terras. De kelderverdieping bestaat uit een garage met parkeerruimte voor twee wagens, een inkomhal en een gastentoilet. Buiten is er een zwembad omringd door meerdere terassen zowel overdekt als onoverdekt. De villa heeft een ruime oprijlaan met toegang tot de garage. Er wordt een pre-installatie voor zwembadverwarming geïnstalleerd en een pre-installatie voor een alarmsysteem. Het klimaatregelingssysteem dat wordt geïnstalleerd is het AEROTHERMIA-systeem voor warmte en koeling en vloerverwarming door het hele huis met AIRZONE-systeem.
Het project beschikt al over een licentie en kan op een jaar gebouwd worden.
Adres
Openen op Google Maps-
Plaats: Benissa
-
Provincie: Alicante
-
Wijk: Raco de Galeno
-
Land: Spanje
Details
Bijgewerkt op april 18, 2025 op 4:07 pm-
Referentie 4517BEN
-
Prijs €2,995,000
-
Bebouwde oppervlakte m2 458 m2
-
Grondstuk grootte m2 1500 m2
-
Slaapkamers 4
-
Badkamers 4
-
Eigendom type Villa
-
Eigendomstatus Nieuwbouw
-
Afstand tot zee (m) 2000
-
Oriëntatie Zuid-west
-
Verwarming Vloerverwarming warmtepomp
-
Warmwatervoorziening Warmtepomp
-
Zwembad Privé
-
Uitzicht Zee
-
Woningtype Villa
-
Airconditioning Ja
-
Constructie Nieuwbouw
-
Terrein Steil
