4480JAV Fantastische nieuwbouw villa in aanbouw te koop in Jávea
  • €2,350,000

Overzicht

Referentie: 4480JAV
  • Villa
  • Eigendom type
  • 4
  • Slaapkamers
  • 4
  • Badkamers
  • 337 m2
  • Bebouwde oppervlakte m2
  • 1646 m2
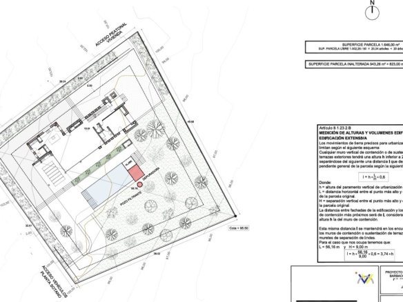
  • Grondstuk grootte m2
  • 2025
  • Bouwjaar

Beschrijving

Luxueuze nieuwbouw villa te koop aan de Montgó, Jávea,
Deze fantastische villa is gelegen in de luxueuze urbanisatie El Garroferal, gelegen op de zonnige zuidflank van de Montgó. Deze unieke locatie garandeert een uitgestrekt uitzicht over het bergachtige landschap richting het zuiden, met prachtige zonsondergangen in het westen. Aan de noordkant is er van dichtbij uitzicht op de impressionante rotswanden van de Montgó.
De villa heeft een totale bebouwde oppervlakte van 337.72 m2 en is verdeeld over drie verdiepen.
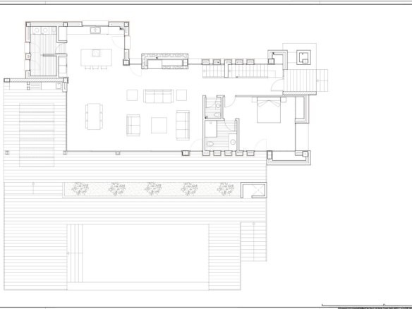
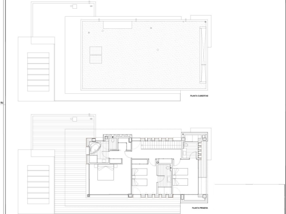
Bij binnenkomst op de benedenverdieping wordt u verwelkomd door een ruime hal waar zich de trappen naar de andere verdiepen bevinden. Voor uiterst gemak bevindt zich hier ook een gastentoilet. De hal komt uit in een ruime woon-eetkamer met een open keuken met een groot kookeiland. Grote schuiframen zorgen voor veel natuurlijke licht-inval en geven toegang tot het overdekte terras aan het zwembad. Aangrenzend aan de keuken bevinden zich de wasruimte en de technische ruimte. Op deze verdieping bevindt zich ook een slaapkamer met een en suite badkamer. Vanuit de slaapkamer is er een directe toegang tot het terras. De bovenverdieping bestaat uit drie slaapkamers, elk met een en suite badkamer en toegang tot een ruim terras. De hoofdslaapkamer beschikt bovendien over een dressing en een badkamer met badkuip.
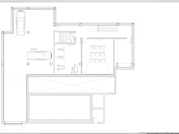
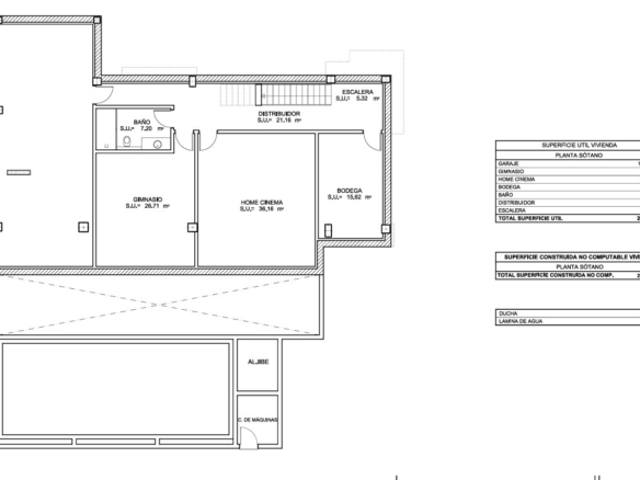
De kelderverdieping bestaat uit een garage van 130 m2, een gymzaal, een home cinema en een wijnkelder.
Buiten is er een zwembad van 5×10 m omringd door een ruim terras en een mooie tuin. De villa is bovendien voorzien van alle luxe om helemaal te relaxen. Zo is er een barbecue met een buitenkeuken, een buitendouche, vloerverwarming op basis van een energiezuinige warmtepomp, airconditioning, automatische poort, etc.
De villa is momenteel in aanbouw en zal eind 2025 klaar zijn (onder voorbehoud).
Plannen met afmetingen en exacte locatie op aanvraag.

  • Plaats: Javea
  • Provincie: Alicante
  • Wijk: El Garroferal
  • Land: Spanje

Details

Bijgewerkt op februari 21, 2025 op 10:18 am
  • Referentie 4480JAV
  • Prijs €2,350,000
  • Bebouwde oppervlakte m2 337 m2
  • Grondstuk grootte m2 1646 m2
  • Slaapkamers 4
  • Badkamers 4
  • Parkeerplaatsen 6
  • Bouwjaar 2025
  • Eigendom type Villa
  • Eigendomstatus Nieuwbouw
  • Afstand tot zee (m) 500
  • Oriëntatie Zuid
  • Verwarming Vloerverwarming warmtepomp
  • Warmwatervoorziening Warmtepomp
  • Verdiepingen 3
  • Zwembad afmetingen 5x10m
  • Zwembad Privé
  • Uitzicht Berg
  • Woningtype Villa
  • Airconditioning Ja
  • Constructie Nieuwbouw
  • Terrein Vlak