- €360,000
Vue d'ensemble
- Appartement
- 2
- 2
- 148 m2
- 2023
Description
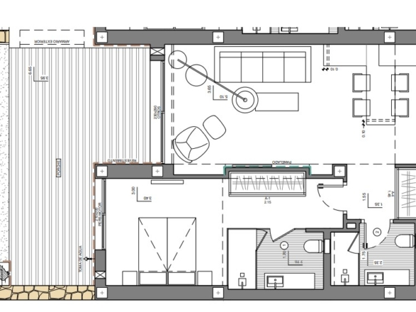
Appartement ensoleillé de deux chambres à coucher à vendre à Cumbre del Sol, Cet appartement moderne est situé dans l’urbanisation Montecala Gardens et a été achevé il y a deux ans. L’appartement se trouve au premier étage et est accessible par les escaliers et l’ascenseur. Vous entrez dans un hall d’entrée avec une buanderie sur la droite. En continuant à marcher, vous entrez dans une cuisine moderne et ouverte, équipée de tous les appareils électriques, y compris un réfrigérateur-congélateur, une plaque de cuisson à induction, un four, un micro-ondes et un lave-vaisselle. À côté se trouve un salon spacieux d’où vous avez un accès direct à la terrasse grâce à des fenêtres coulissantes. À côté du salon se trouve la chambre principale avec une luxueuse salle de bains attenante et plusieurs armoires encastrées. Cette chambre dispose également d’un accès direct à la terrasse par des fenêtres coulissantes.
En outre, il y a une deuxième chambre double avec des armoires encastrées et une salle de bains séparée.Pour plus de confort, l’appartement dispose de deux armoires encastrées supplémentaires, une grande dans le salon et une plus petite à l’entrée.À l’extérieur, il y a une terrasse couverte spacieuse avec un salon et un coin salle à manger. Devant la terrasse se trouve un beau jardin avec des vues ouvertes sur la vaste réserve naturelle qui sépare Cumbre del Sol de Moraira. Grâce au mur en pierre naturelle du côté est, l’intimité est garantie ici.
Grâce à l’orientation sud de l’appartement, vous pouvez trouver une place au soleil en toute saison. L’appartement est équipé de la technologie la plus récente, y compris le chauffage par le sol, la climatisation, les volets électriques et les stores électriques.
Le mobilier peut être acheté séparément pour 15 000 euros. L’urbanisation Monte Cala Gardens dispose de deux belles piscines et d’un parking couvert juste devant votre propriété. La plage idyllique de Cala Llebeig est accessible à pied.
Le centre ville de Moraira et la plage sont à 10 minutes en voiture, mais on peut aussi s’y rendre à pied par un sentier qui traverse le parc naturel. Cumbre del Sol dispose de plusieurs installations, dont un supermarché, une pharmacie, un restaurant, un club de tennis, une école internationale, etc. Plusieurs grands supermarchés et restaurants sont accessibles en 5 minutes en voiture.
Adresse
Openen op Google Maps-
ville: Benitachell
-
Province: Alicante
-
District: Cumbre del Sol
-
Pays: Espagne
Détails
Mis à jour le novembre 17, 2025 à 9:32 am-
Référence C3XY4476BELL
-
Prix €360,000
-
Surface bâtie m2 148 m2
-
Chambres à coucher 2
-
Salles de bains 2
-
Places de parking 1
-
Année de construction 2023
-
Type de propriété Appartement
-
Statut du logement Revente
-
Distance de la mer (m) 500
-
Orientation Sud
-
Chauffage Pompe à chaleur pour chauffage par le sol
-
Alimentation en eau chaude Pompe à chaleur
-
Étages 1
-
Piscine Commune
-
Type de terrain Raide
-
Vue Montagne
-
Type de propriété Appartement
-
Cuisine ouvrir
-
Construction Moderne
-
Terrain Raide
