- €595,000
Overview
- Villa
- 3
- 3
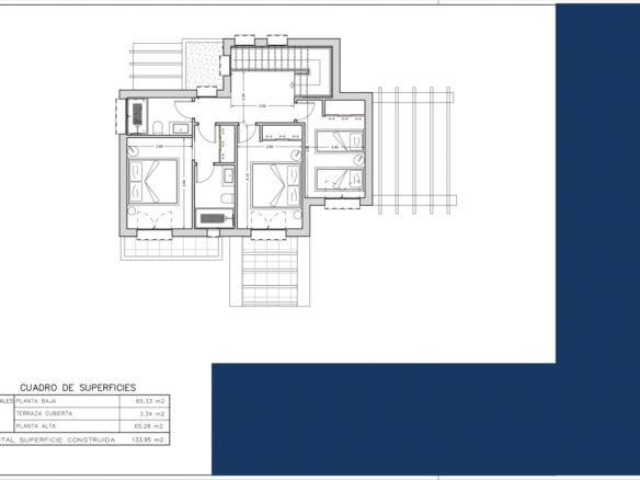
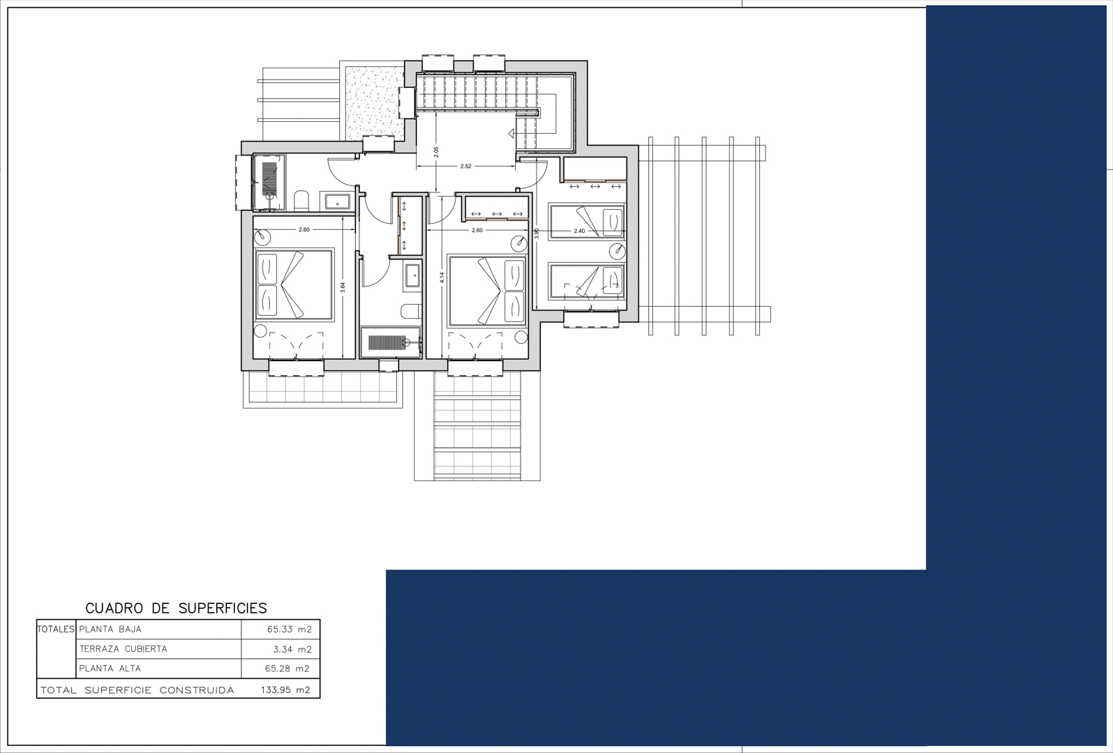
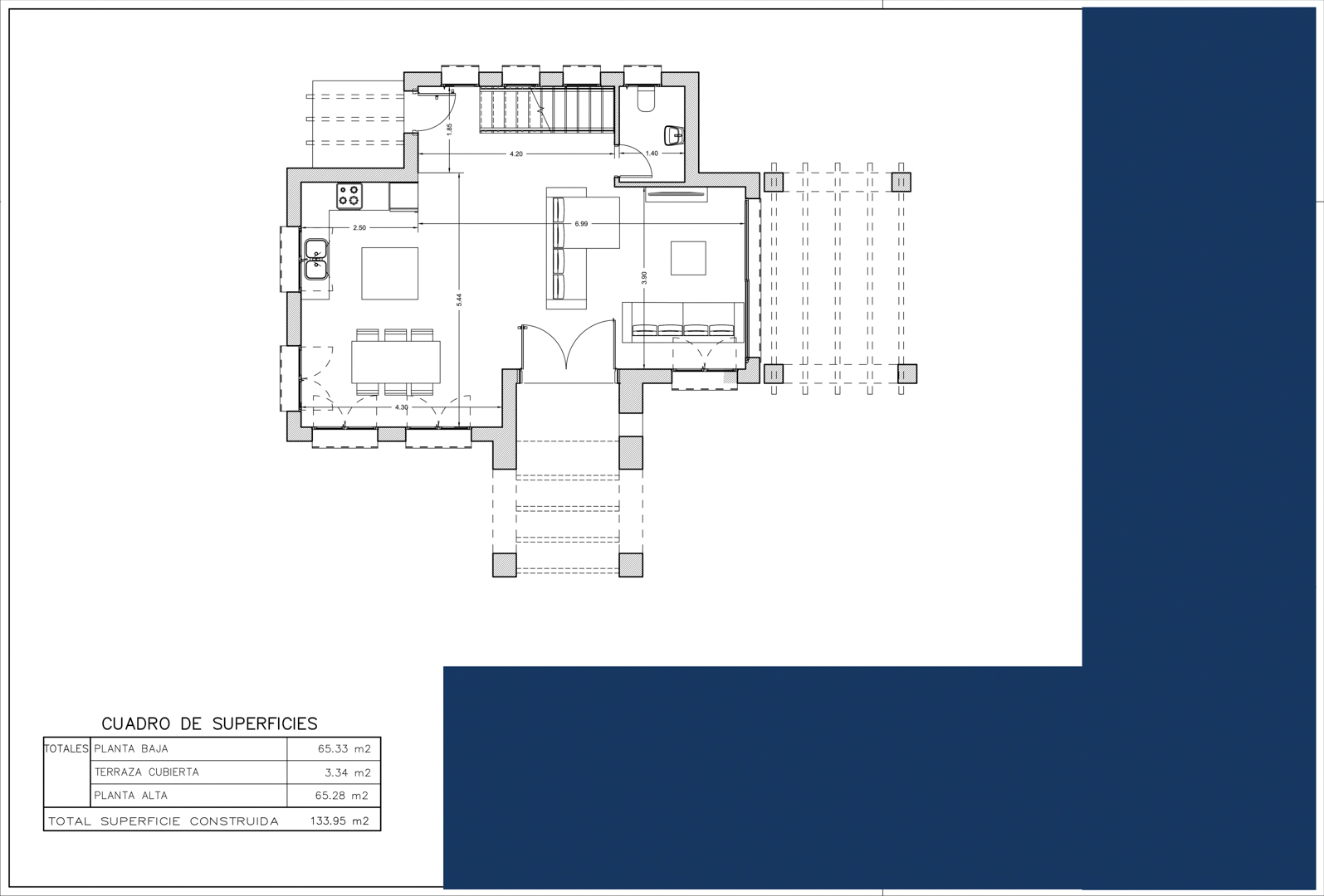
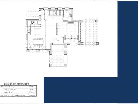
- 134
- 446
Description
Located in the residential area of Monte Solana in Pedreguer, this modern new build villa offers a well-balanced combination of contemporary design, functionality and Mediterranean surroundings, with open views towards the valley, the mountains and the sea.
Set on a private plot of 446 m2, the property offers 134 m2 of built area and is designed to provide a comfortable and efficient living environment.
The villa features three bedrooms and three bathrooms, as well as an open-plan living, dining and kitchen area with direct access to the terrace. The outdoor space includes a private swimming pool and areas designed to enjoy the climate and the surrounding views.
The property has been conceived with a focus on structural quality, thermal comfort and energy efficiency, combining traditional construction methods with modern solutions.
In addition, the villa includes parking for one vehicle and forms part of a fully customisable project, allowing the buyer to adapt finishes and details to their preferences.
Ideally located just a few minutes from the motorway, the Portal de la Marina shopping centre and the beaches, this property represents a practical option both as a permanent residence and as an investment on the Costa Blanca.
Address
Openen op Google Maps-
city: Pedreguer
-
Province: Alicante
-
District: Monte Solana
-
Country: Spain
Details
Updated on May 4, 2026 at 10:16 am-
Reference OFF7109PED
-
Price €595,000
-
Built area m2 134
-
Land area m2 446
-
Bedrooms 3
-
Bathrooms 3
-
Parking spaces 1
-
Property type Villa
-
Status New construction
-
Orientation East
-
Heating Underfloor heating heat pump
-
Pool Private
-
Type of terrain Slightly sloping
-
View Sea, Mountain, Open
-
Property type Villa
-
Air Conditioning Yes
-
Kitchen open
-
Construction New construction
-
Terrain Slightly sloping
-
Usable floor area m2 134
- Ana Munoz
